dataloggrar, termometrar, hygrometrar...
English Česky Africa China Español Français Magyar Polski Sweden USA UAE

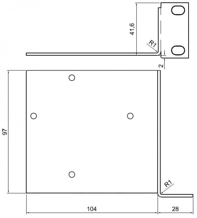
Montageadapter för montering av transmittrar i 19"-rack

Universal adapter för P8xxx och Txxxx Web Sensor för enkel montering i 19" rack. Muttrar och brickor för montage ingår.

 

 

  • Art nr
    MP046
  • 160 SEK